Apartament de la dezvoltator Tractorului Brașov
Specificații
Dotări și facilități
Locație
Descriere
Apartamente de vânzare în complex rezidențial nou – Cartierul Tractorul, Brașov
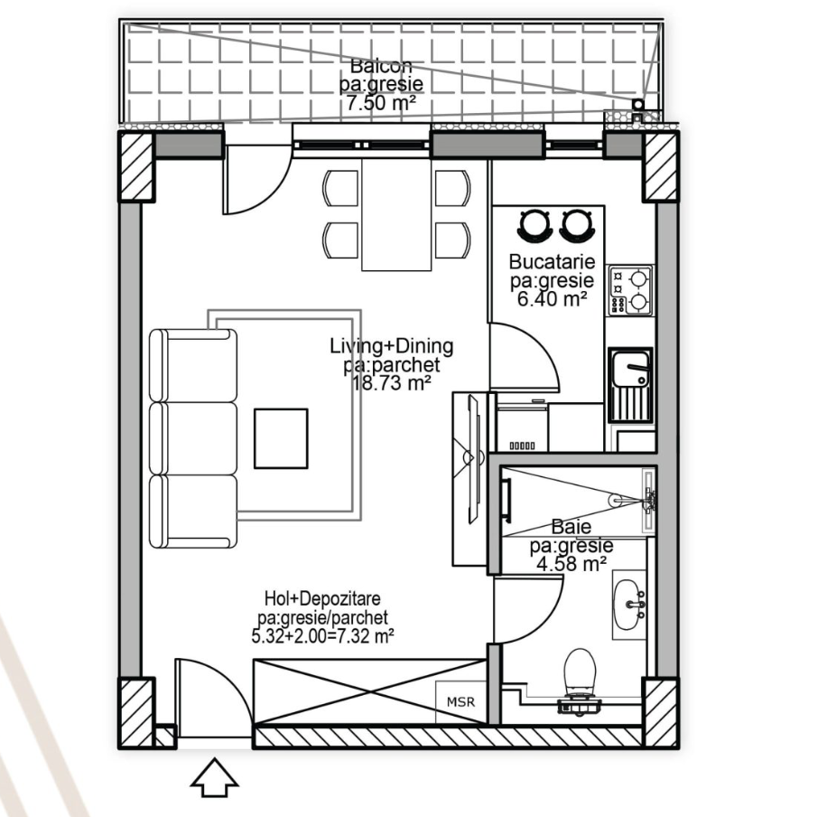
Se vând apartamente într-un complex rezidențial modern, aflat în fază de construcție, situat în cartierul Tractorul, una dintre cele mai dinamice și căutate zone din Brașov. Proiectul oferă cele mai bune prețuri din zonă, cu posibilitatea de a alege compartimentările dorite.
Prețurile pornesc de la 2.400 € / m² + TVA.
Ansamblul beneficiază de o poziționare excelentă, la doar 5 minute de mers pe jos până la Mall Coresi, în apropiere de magazine, stații de autobuz, grădinițe și școli — un avantaj major pentru un trai comod și bine conectat.
La finalizare, complexul va include spații verzi amenajate, ideale pentru relaxare și timp petrecut cu copiii, precum și spații comerciale la parter, care vor contribui la dezvoltarea unui business si de cartier care la fel sunt de vânzare.



